欢迎访问无锡市恒源电讯电器有限公司网站!主要产品:双向拉绳开关、振动防闭塞装置、电热式胶带修补机、高中低煤位控制仪等
产品型号:NMD/DDJC-Z
适用范围:带宽650-2000
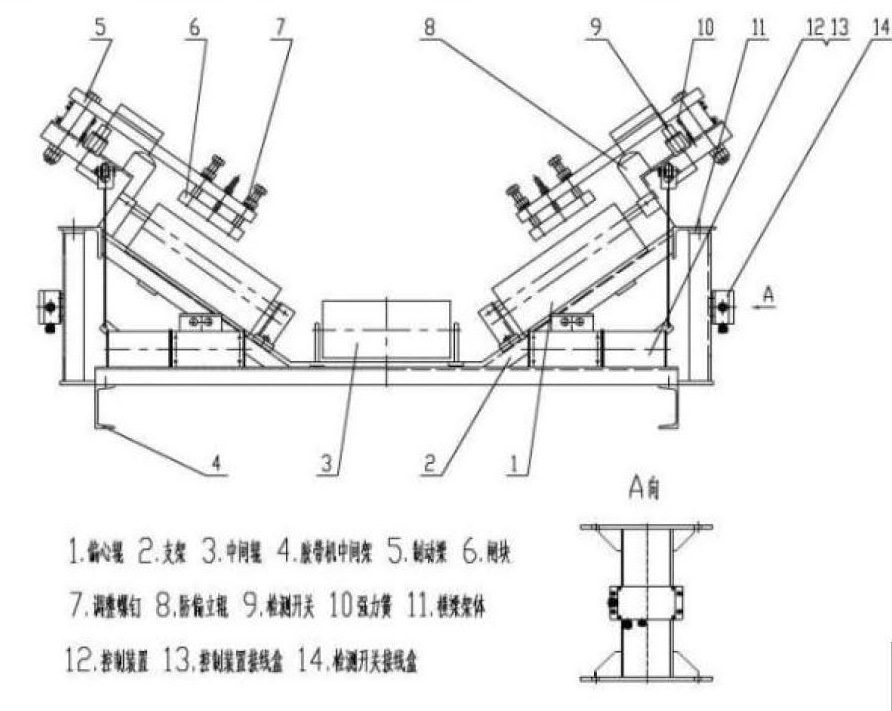
断带自锁装置结构原理
如果发生断带或逆止器失效,胶带下滑带动偏心辊1转动,同时驱动装置动作,制动梁5在强力簧10和其自身重力作用下旋转至与偏心辊1平行位置。由于偏心辊1的偏心作用,使闸瓦与两侧偏心辊1的间隙逐渐变小,最终迅速将下滑的重段胶带抓捕牢固。
产品主要技术性能
1、上运胶带输送机运行中断带,胶带反转下滑,断带抓捕装置动作实施抓捕胶带,同时切断胶带输送机开关控制回路电源,并发出断带报警信号。
2、采用机电一体化设计,控制主机采用可编程控制器(PLC),通过RS485可实现与中控室进行通讯,实时监控皮带机的工作状态。
3、因为测速传感器输出的是数字信号,可通过控制程序实现自动分析皮带是蠕动下滑倒带还是断带功能;具有故障显示查询、声光报警功能、可采用多种操作模式。
4、根据输送机的运行状况, 在正常停车胶带下滑﹤0.6mm(可调)时,断带抓捕装置能识别为安全下滑距离,此时断带抓捕装置不实施抓捕。
5、主机主要实现对从机进行监控,定时与从机进行通信,从机将自己的状态和速度发给主机,主机接收到后进行数据处理,根据处理的数据结果进行控制从机的动作,并控制语音报警器通知操作人员进行事故处理。
6、从机主要实现的功能是通过状态传感器和速度传感器实时监测抓臂状态和皮带的正反转,并将所需的一些数据存储起来,当和主机进行通信时,将这些数据发送给主机,通过主机对这些数据的处理来做出对从机的控制(实施抓捕)。
7、本装置额定工作电压为380 V,最小工作电压值不低于220V。
8、胶带输送机正常运行时,必须保证本产品不出现误动作,不能对皮带造成损伤。
9、只要断带保护器实施抓捕动作,必须保证皮带机不能启动。
10、人工对胶带进行检修时,可实现人工控制方式对抓捕器进行抓捕检测。
11、抓捕器配置皮带断带监控系统,可监控显示设备故障,皮带抓捕情况。
12、抓捕机构结构形式为敞开式凸轮压带方式,该方式体积小,结构紧凑。抓捕胶带的拉力随着胶带下滑力的增大而加大,不占用用户胶带有效使用面积。
上一篇:倒断带保护装置
下一篇:LJPL胶带硫化机